辉达娱乐

产品 案例 关于

资讯详情
冲压模具下模调装

关于冲压模具下模调装的知识,这里普及一下,中山精密五金公司根据实际工作经验,对细节进行记录,于是有了一下知识的积累。

上模反装主要是考虑避位:尺寸小需避位。

中山精密五金公司

尺寸较小,需采用117#,最后成形第。如果上模正装,就必须采用E处或D处作定位。E处或D处定位很麻烦,且尺寸难以保証,下模又需反装。如果采用上模反装,以B处作定位,下模正装(因为前几道工序下模全部都为正装),这就很方便折弯,又可避位。如下图:

中山精密五金公司


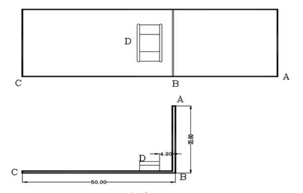
折弯线旁有抽形抽孔压桥等其他加工方式,需要避位。如图: 由于桥形先压了,要靠A折B处,DB处的内尺寸为4。2mm,只能选用117#刀。如果上模正装,将会把桥形压变形,反装才能避开桥形,内部小折定位尺寸如果采用角度模式多工程输入。即从折弯线到定位边的尺寸再加一个料厚,如果采用MDI输入,即从折弯线到定位边的尺寸再加K/2(0。4t/2=0。2t)采用角度输入: 折C处输入定位尺寸为:AC+T,采用MDI输入: 折C处输入定位尺寸即为: AC+K/2。

尽量以未折边为定位边,中山精密五金公司以最近位置选取定位边,尽量以冲压模具宽边作为定位边。

中山精密五金公司

返回列表
上一篇
下一篇
var _hmt = _hmt || []; (function() { var hm = document.createElement("script"); hm.src = "https://hm.baidu.com/hm.js?25a8b6ddd6dc7b9a90aeb1f51e218aa6"; var s = document.getElementsByTagName("script")[0]; s.parentNode.insertBefore(hm, s); })(); LOGIN_辉达娱乐_「爱生活,玩辉达」 - pghd 辉达娱乐 – 简单注册,畅享丰富娱乐内容,安全保障 - pghd 美彩国际·(中国区) - 官网 - pgmc 美彩国际 - 美彩注册辉达娱乐 - pgmc 美彩国际 - 安全购彩官网 - pgmc