辉达娱乐

产品 案例 关于

资讯详情
钣金加工工艺中的加工图纸基础知识

工程制图基础知识是现代钣金加工工艺的基础,学习行业制图标准及其有关知识,培养绘制和阅读钣金工程图样,是诚瑞丰钣金工程师的一项基本能力。

钣金加工图纸-诚瑞丰科技

(一)     图纸幅面及格式

图纸幅面及格式如下表所示

钣金加工图纸-诚瑞丰科技

1、图纸幅面

图纸是绘图的载体,标准的图纸幅面共有五种,分别为A0A1A2A3A4

2、图框格式

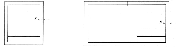
在图纸上用粗实线画出的线框,对于需要装订的图纸,其图框尺寸通常为a=25mm,c=5mm10mm

钣金加工图纸-诚瑞丰科技

若图纸不留装订变,则e=2010mm,如下图


钣金加工图纸-诚瑞丰科技

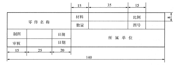
(二)     钣金加工工艺图纸的标题栏

标题栏位于每张图纸右下角的图框,与看图方向一致。标题栏外框线一律用粗实线绘制,右边和底边与图框线重合,内部分割线用细实线绘制,如下图。

钣金加工图纸-诚瑞丰科技

(三)     钣金图纸上的字体

字号:国标中以字体高度海标字体的号,如字高系列1.8,2.5,3.5,5,7,10,14,20mm)等。

字体:图样上的汉字应写成仿宋体,并采用国家正式公布推行的简化字。汉字的高度h应不小于3.5mm,字体的宽度约等于字体高度的2/3.

要求:字体工整、笔画清楚、间隔均匀、排列整齐。

以上就是钣金加工工艺的图纸基础知识,图纸的制作注重对细节的把控,尤其是对精度要求很高的钣金件,一张优质的图纸能带来更好的加工效果。更多详情欢迎联系辉达娱乐-辉达注册-官方指定注册登录平台 - pghd。

深圳市诚瑞丰公司微信号二维码

返回列表
上一篇
下一篇
var _hmt = _hmt || []; (function() { var hm = document.createElement("script"); hm.src = "https://hm.baidu.com/hm.js?25a8b6ddd6dc7b9a90aeb1f51e218aa6"; var s = document.getElementsByTagName("script")[0]; s.parentNode.insertBefore(hm, s); })(); LOGIN_辉达娱乐_「爱生活,玩辉达」 - pghd 辉达娱乐 – 简单注册,畅享丰富娱乐内容,安全保障 - pghd 美彩国际·(中国区) - 官网 - pgmc 美彩国际 - 美彩注册辉达娱乐 - pgmc 美彩国际 - 安全购彩官网 - pgmc